> 제품소개 > 기타 관련 기기
 
기타관련기기


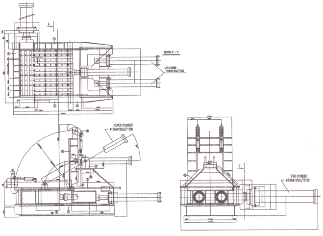
고철 압축기 도면